Наш сайт использует файлы cookie, чтобы улучшить работу сайта, повысить его эффективность и удобство.
Хорошо, я принимаю
заказать звонок
Укажите своё имя и номер телефона.
Наши специалисты ответят на все вопросы.

«Вуден»

О проекте

Этот великолепный большой дом из клееного бруса сочетает современный дизайн и экологическую чистоту, создавая идеальное пространство для жизни и отдыха. Снаружи «Вуден» впечатляет своей массивностью и теплотой натурального дерева, которое гармонично вписывается в любой ландшафт, подчеркивая статус и уют вашего дома.
«Вуден» — это не просто дом, это инвестиция в качество жизни, долговечность и экологичность. Благодаря использованию передовых технологий клееного бруса, ваш дом будет служить десятилетиями, оставаясь теплым и надежным.
Этажность
2
Кол-во комнат
5
Общая площадь дома
289м²
Гараж
нет
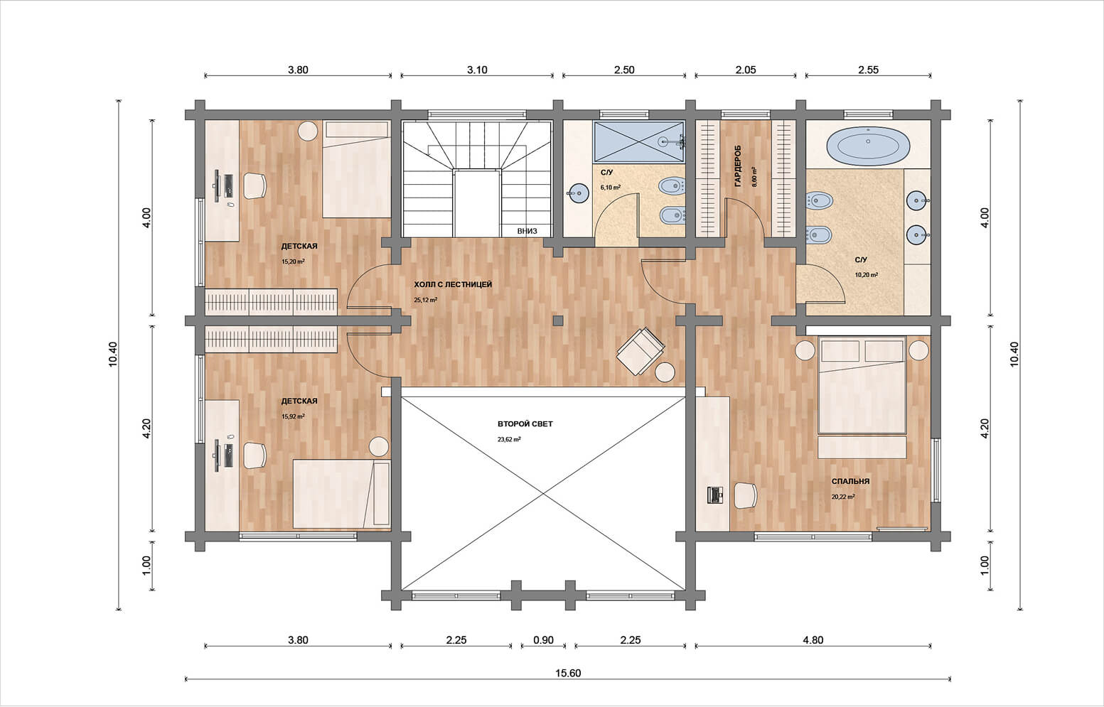
На втором этаже дома расположены:

— вход в холл с лестницей
— спальня
— две детские комнаты
— ванные комнаты
— гардероб между ванной и спальней
— внутри холла зона "второй свет"

Планировка

На первом этаже дома расположены:

— гостиная, с выходом на террасу
— кухня, соединена с гостиной
— спальня, рядом с холлом
— встроенная прачечная
— санузел
— внешняя зона: терраса и крыльцо

Свяжитесь с нами
Мы всегда готовы обсудить с вами любые идеи и задачи, а также ответить на все вопросы. Свяжитесь с нами любым удобным способом.
Другие дома из клееного бруса