Наш сайт использует файлы cookie, чтобы улучшить работу сайта, повысить его эффективность и удобство.
Хорошо, я принимаю
заказать звонок
Укажите своё имя и номер телефона.
Наши специалисты ответят на все вопросы.

«Брюне»

О проекте

Дом «Брюне» — это современное решение для тех, кто ценит качество, комфорт и долговечность. В основе проекта лежит использование высококачественных клееных досок, которые обеспечивают прочность, устойчивость к деформациям и отличные теплоизоляционные свойства. Конструкция из клееного бруса позволяет реализовать большие пролетные расстояния без дополнительных несущих элементов, что дает просторные и свободные внутренние помещения.
Экологическая составляющая — важная часть проекта: использование клееного бруса, экологичных лако-красящих материалов и современных технологий строительных работ. Дом полностью соответствует строительным стандартам и требованиям безопасности.
Этажность
1
Кол-во комнат
6
Общая площадь дома
330 м²
Гараж
нет

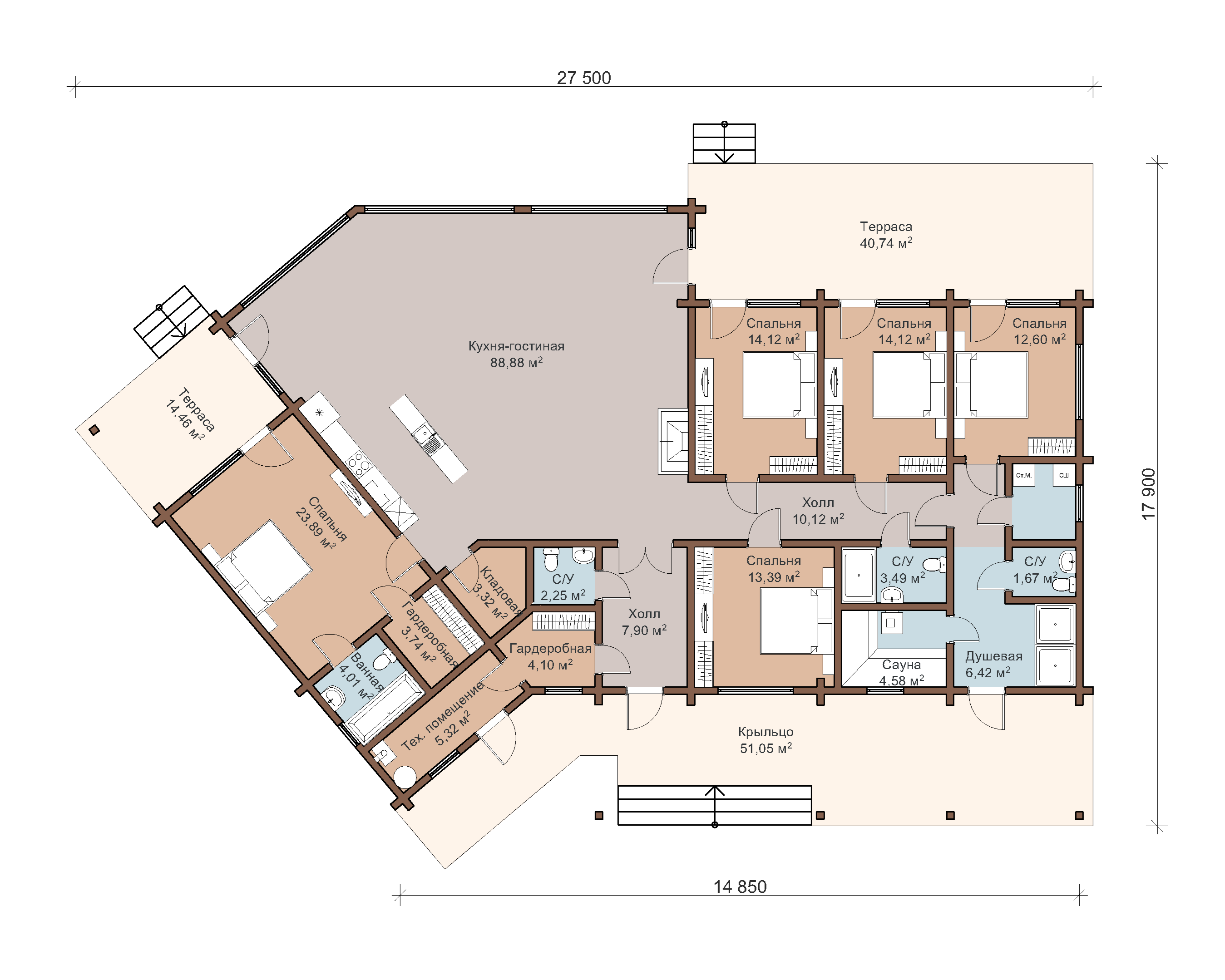
Планировка

В планировке этого дома есть:

— большая общая зона — кухня-гостиная с выходом на террасу
— основная спальня с гардеробной и собственной ванной
—три дополнительные спальни
—санузлы (в том числе гостевой и общий)
— сауна с душевой
— техническое помещение, кладовая, постирочная и доп. гардеробная
Свяжитесь с нами
Мы всегда готовы обсудить с вами любые идеи и задачи, а также ответить на все вопросы. Свяжитесь с нами любым удобным способом.
Другие дома из клееного бруса